Produktionshalle mit Verwaltung

85748 Garching

Kunde
Carl Zeiss QEC GmbH

Bauphase

Fläche
1.650 m²

Leistungen
Planung, Konzept und Fertigstellung

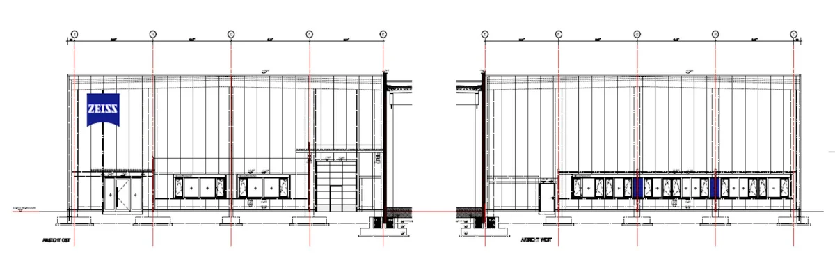
Für die Carl Zeiss QEC GmbH haben wir in Garching bei München ein Produktions- und Verwaltungsgebäude realisiert, das Präzision, Effizienz und modernes Design vereint. Auf einer Geschossfläche von 2.600 m² und einem umbauten Raum von 11.800 m³ entstand ein Standort, der den hohen Anforderungen der industriellen Messtechnik gerecht wird.

Das Gebäude bietet optimale Voraussetzungen für die Fertigung, Entwicklung und Verwaltung innerhalb eines klar strukturierten, funktionalen Umfelds. Die architektonische Gestaltung folgt dem Anspruch, technische Innovation mit einer hochwertigen, zeitlosen Architektur zu verbinden.

Die Tragkonstruktion wurde aus Stahlbetonfertigteilen mit integrierten Stahlbetontreppen ausgeführt – robust, langlebig und präzise gefertigt. Die Fassade besteht aus hochwertigen Sandwichpaneelen, die durch ihre ausgezeichneten Dämmeigenschaften und ihre klare, technische Ästhetik überzeugen.

Für die technische Gebäudeausrüstung kommt eine Gaswärmepumpe zum Einsatz, die eine energieeffiziente Beheizung und nachhaltige Nutzung des Gebäudes sicherstellt.

So entstand ein leistungsfähiger, energieeffizienter Gewerbebau, der die Werte von Carl Zeiss – Präzision, Qualität und Innovation – architektonisch erlebbar macht. Geplant und gebaut von systeambau.

Produktionshalle mit Verwaltung - Carl Zeiss QEC GmbH Produktionshalle mit Verwaltung - Carl Zeiss QEC GmbH Produktionshalle mit Verwaltung - Carl Zeiss QEC GmbH Produktionshalle mit Verwaltung - Carl Zeiss QEC GmbH Produktionshalle mit Verwaltung - Carl Zeiss QEC GmbH

aLLE Referenzen

Sie wollen weitere Beispiele für erfolgreich von systeambau realisierte Projekte? Werfen Sie einen Blick auf all unsere Referenzen!

Ihr nächster Bau – mit uns an Ihrer Seite.

systeambau west
Bad Hönningen | Rheinland-Pfalz

Christian Kaulen
T +49 2635 9538-0
M anfragen@systeambau.de


systeambau süd
Hilpoltstein | Bayern

Daniel Polzin
T +49 9174 4741-0
M anfragen@systeambau.de

EXCDEEDING
EXPECTIOATIONS
Herr Frau Divers

Ich habe die Datenschutzerklärung gelesen und bin mit der Verarbeitung meiner Daten einverstanden.

let’s talk about it     let’s talk about it     let’s talk about it     let’s talk about it     let’s talk about it     let’s talk about it     let’s talk about it     let’s talk about it     let’s talk about it    
View
View